The New Clark Well & Treatment Plant
Eastsound Water has been in active development of a well site and a treatment facility over the past 4 years. Located across from the medical center, and in front of OPAL’s Wild Rose Meadow development, this new site has the ability to fundamentally change our future access to water resources by doubling our total production capacity. Secondary benefits include creating opportunities to rehabilitate much-needed pieces of our own infrastructure and consolidate our operations to run more efficiently.
This email mini-series will explain both the historical context and well and technical detail of this new site. Our hope is that by the end of this series our members and customers will understand the significance of this project, learn about the technical and financial details, and get excited about the future ahead.
Returning With Intent: Pilot Testing and Modern Validation (2021)
By 2021, after lying dormant for 15 years, EWUA returned to the Clark Well project with a different question than it had asked in 2005. The question was no longer whether the well could produce water, but whether it could be integrated into a modern public water system reliably, efficiently, and in full compliance with current regulatory expectations.
Rather than relying on design assumptions alone, EWUA conducted on-site pilot testing using treatment equipment configured to replicate full-scale operation. This step was critical. Pilot testing allowed real Clark Well water to be treated under controlled conditions, providing direct evidence of how the water would behave within a treatment system.

The pilot system employed pyrolusite-based filtration, a media selected specifically for its ability to catalyze oxidation and remove iron and manganese efficiently. Raw groundwater was oxidized using chlorine, converting dissolved metals into particulate form. As water passed through the filter media, these particulates were captured, producing finished water that met aesthetic and operational goals.
The results were decisive. Iron and manganese removal efficiencies exceeded ninety percent consistently. Hydrogen sulfide and ammonia, present only at trace levels, were effectively addressed through oxidation and filtration. The system operated stably at flow rates up to 150 gallons per minute, with headloss developing gradually and predictably over time.

Equally important was the behavior of the system during backwashing. Accumulated solids were removed effectively without excessive water loss, and backwash cycles did not destabilize the process or compromise finished water quality. This confirmed that the treatment approach could be sustained operationally over long periods, not just demonstrated in short-term tests.
Pilot testing transformed the Clark Well from a promising resource into a validated project. It reduced uncertainty, informed final design decisions, and provided confidence that the system would perform as expected under real-world conditions.
Capacity in Context: What the Clark Well Adds to the System
With treatment validated, the significance of the Clark Well could be understood more fully in the context of the overall system. At its recommended operational rate of up to 150 gallons per minute, the Clark Well has the capacity to produce approximately 65.7 million gallons of water per year if operated continuously.
That figure is striking when placed alongside historical demand. Eastsound Water has historically sold around fifty million gallons per year, supplied through the coordinated operation of six groundwater wells and the Purdue surface water treatment plant. In other words, the Clark Well alone has the theoretical capacity to match or exceed the total annual water sales of the entire system.

This comparison is not intended to suggest that the Clark Well will operate continuously or replace existing sources. Public water systems are strongest when individual assets operate well below their maximum limits. Continuous full-capacity operation would neither be necessary nor desirable.
Instead, the value lies in what that capacity represents. Even at partial duty cycles, the Clark Well provides substantial system benefit. Operating at half capacity, for example, it could supply more than thirty million gallons per year. That level of contribution allows other wells to rest, undergo maintenance, or be rehabilitated without jeopardizing service. It reduces stress on surface water treatment infrastructure and provides operational breathing room that the system previously lacked – especially during the summer months.
In this sense, capacity becomes insurance rather than excess. It is margin — the ability to respond to change calmly rather than reactively.
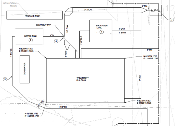
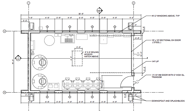
Designing the Facility Around Reliability
With the role of the Clark Well clearly defined, EWUA advanced into full facility design and construction. The Clark Well Treatment Facility was designed to be compact but robust, reflecting the understanding that critical infrastructure does not need to be large to be resilient.

Structural design meets seismic and wind standards appropriate for critical facilities, recognizing that water systems must remain functional during and after disruptive events. Equipment anchorage, foundation, piping layouts, and structural connections were designed to minimize vulnerability to movement and stress.

Inside the facility, treatment processes are governed by performance-based control logic rather than fixed schedules. Pumping rates adjust based on system demand and storage levels. Chlorine dosing is flow-paced, ensuring consistent disinfection regardless of changes in production rate. Filtration backwash is initiated based on headloss thresholds and run-time limits, allowing the system to respond dynamically to changing conditions.

Continuous online monitoring provides real-time visibility into system performance. Chlorine residual, pH, temperature, and flow are tracked continuously, with alarms configured to alert operators before deviations become compliance issues. This level of monitoring reduces reliance on manual intervention and provides confidence that the system is operating as intended.
In the next installment…
Gaining access to the aquifer was only the first step. The real challenge was designing a facility that could operate reliably under the realities of island life — where storms, power outages, and disrupted supply lines are not rare events, but conditions that must be planned for.
Dan Burke
General Manager
Eastsound Water
